2026中野駅再開発|駅ビルやロータリー計画を解説

目次
トレンドワード:中野駅再開発
「中野駅再開発」についてピックアップします。「100年に1度」とも言われる大規模再開発で、東京の新たなエネルギーを生み出す活動拠点の実現が期待されています。
本記事では中野駅再開発について、街づくりの項目ごとに詳しく解説します。中野サンプラザ建て替えの中止など、気になる疑問についてもチェックしてみてください。
中野駅周辺の主な再開発①土地区画整理事業
ここでは中野駅周辺の「土地区画整理事業」に関する再開発について解説します。
中野四丁目新北口駅前

中野サンプラザを中心とした中野駅新北口駅前エリア(区役所・サンプラザ地区)は、独立行政法人都市再生機構が施行者となって事業が進められています。
施行地区面積は約5.2haで、事業完了は2029年度の予定です。市街地再開発事業との一体型施行により、街区再編による大街区化が実現する見込みです。
中野三丁目

中野駅西側の上空活用と中野駅三丁目駅直近地区の範囲は、「中野駅西口地区」として位置づけられています。再開発により、中野駅西側橋上駅舎・南北通路につながる駅前広場と住宅地を結びつける文化的なにぎわいのまちなみを整備・誘導します。
施行地区面積は約1.0haで、事業完了は2028年度の予定です。中野駅西口広場を整備し、地区計画を併用することで建築形態を誘導することが想定されています。
中野二丁目

中野駅南口周辺では、駅前広場の交通結節機能と周辺の交通動線を整備する土地利用の見直しが実施されます。土地の高度利用の推進によって業務・商業・住宅・文化・公共公益機能の集積を進め、地区全体の都市機能の改善を図る計画です。
施行地区面積は約2.4haで、事業完了は2028年度の予定です。
中野駅周辺の主な再開発②市街地再開発

ここでは中野駅周辺の「市街地再開発」に関する事業を解説します。
中野四丁目西地区

中野四丁目新北口西エリア(中野四丁目西地区)については、区域内地権者有志により市街地再開発準備組合が設立され、まちづくりの推進に向け地権者間の話し合いが進められています。

具体的には都市基盤施設の整備や空地等の確保、住宅の確保などの地域貢献を実施し、用途地域変更と高度利用地区の指定による高容積での再開発事業の実現を目指します。竣工時期や施工ゼネコンについては、詳細未定です。
中野四丁目新北口駅前地区

中野駅新北口駅前エリアを含む「中野四丁目新北口地区」のより良好なまちづくりへの誘導を目的として、平成30年3月に「中野四丁目新北口地区まちづくり方針」が策定されました。
その後、令和6年7月に施行予定者が市街地再開発事業の施行認可が申請されましたが、その後、施行予定者から区に対して急激な想定工事費の増加および事業計画どおりの事業着手が困難な旨の報告があり、令和6年10月に施行認可申請が取り下げられました。
そのため、本事業のスケジュールは見直しになっています。
囲町西地区

囲町西地区は戸建住宅や集合住宅が密集した住宅地域で、道路幅員が狭く行き止まり道路が多いなど道路基盤が未整備な状況でした。
そのため囲町東地区と連携し、都市計画道路補助221号線などの道路基盤施設の整備にあわせて中野駅や中野四季の都市を結ぶ歩行者ネットワークを形成し、防災性の高い市街地の形成を図る計画です。
- 施行者:囲町西地区市街地再開発組合
- 所在地:東京都中野区中野四丁目地内
- 面積:約0.8ha
- 事業費:約298億円
- 整備内容:
【公共施設】
- 都市計画道路補助221号線(幅員16m)
- 区画道路2号(幅員10.5m)
【施設建築物】
- 延べ面積 約52,770㎡
- 主要な用途(住宅、店舗等、駐車場 等)
- 住宅戸数 約490戸
工事のスケジュールは、「建築工事着工:2025年4月、建築工事完了:2028年3月(予定)」となっています。
囲町東地区

囲町東地区第一種市街地再開発事業の内容は、下記の通りです。
- 施行者:囲町東地区市街地再開発組合
- 所在地:東京都中野区中野四丁目地内
- 面積:約2.0ha
- 事業費:約711億円
- 整備内容
【公共施設】
- 都市計画道路補助221号線(幅員16m)
- 区画道路1号(幅員14m)
【施設建築物】
- 延べ面積 約120,545 平方メートル
- 主要な用途(住宅、業務、商業、駐輪場、駐車場 等)
- 住宅戸数 約807戸
工事のスケジュールは、「建築工事着工:2022年9月、建築工事完了:2026年度(予定)」となっています。

具体的には三井不動産レジデンシャルによる2 棟の住宅棟「パークシティ中野 ザ タワー エアーズ」、「パークシティ中野 ザ タワー ブリーズ」が建設されています。合わせて全807 戸の大規模レジデンスで、「100 年に一度の開発」ともいわれる官民一体のプロジェクトの一端を担っています。
またオフィス・商業棟「中野 M-SQUARE」も、合わせて開発される予定です。
中野二丁目地区

中野駅南口ロータリー周辺の駅前広場の交通結節機能と、周辺の交通動線が整備される計画です。土地利用の見直しや土地の高度利用の推進によって業務・商業・住宅・文化・公共公益機能の集積を進め、地区全体の都市機能の改善が図られます。
工事完了は、2028年度の予定です。
中野駅周辺の主な再開発③街路事業
ここでは中野駅周辺の「街路事業」に関する再開発について解説します。
新北口駅前広場

中野駅地区は、JR中央線の快速停車駅・東京メトロ東西線の始発駅となっている中野駅と、多くのバス路線の始終点等がある駅前広場からなります。今後も交通結節点の中心として、広域的な交流機能を高めていく必要があります。
具体的には新北口駅前広場として補助223号線を整備が整備され、中野四季の都市・囲町地区へのデッキも設けられます。
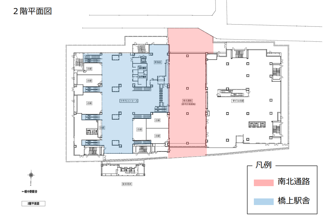
中野駅西側南北通路・橋上駅舎等

中野区は、東日本旅客鉄道㈱及び東京地下鉄㈱と協定を締結して中野駅西側南北通路・橋上駅舎等事業を進めています。
中野駅西側南北通路・橋上駅舎と東日本旅客鉄道株式会社が整備する駅ビルからなる道路一体建物について、令和元年度に実施設計が完了した後、令和2年度から建物本体の工事に着手しています。南北通路・橋上駅舎については令和8年(2026年)のに開業する予定です。
中野駅再開発でよくある疑問

ここでは、中野駅再開発でよくある疑問について解説します。
中野サンプラザ建替は中止になった?
中野サンプラザが含まれる中野駅新北口駅前エリアは、令和6年7月に施行予定者が市街地再開発事業の施行認可を申請しました。しかしその後、施行予定者から区に対して急激な想定工事費の増加および事業計画どおりの事業着手が困難な旨の報告があり、令和6年10月に施行認可申請が取り下げられました。
これにより、中野サンプラザ建て替えのスケジュールは見直しとなっています。
中野駅ビルのテナントは?

中野駅の再開発で、2026年に「アトレ中野」が開業する予定です。建物概要は、下記の通りです。
- 建築面積:約6,500㎡
- 延床面積:約18,500㎡(別にラチ内コンコース約1,100㎡、南北通路約1,400㎡)
- 構造:S造(一部CFT造)
- 規模:地上5階、塔屋1階
- 建物高さ:29.0m
- 建物用途:駅施設、店舗

テナントについては2025年10月時点では未定ですが、物販店や飲食店の入居が予想されます。
まとめ
中野区は、中野駅を中心とする周辺エリアの再開発に取り組んでいます。駅前広場の改修とともに、新たな駅前広場整備や、西側改札となる橋上駅舎・南北通路の設置といった中野駅地区の整備が進められています。各地区の特色を活かした街づくりに、ぜひ注目してみてはいかがでしょうか。